ติดตั้งเครื่องชั่งรถบรรทุก
tonanasia
การติดตั้งเครื่องชั่งรถบรรทุกมีข้อดีหลายด้านที่ส่งผลต่อธุรกิจ การขนส่ง และการควบคุมคุณภาพอย่างมีประสิทธิภาพ
โปรแกรมที่เชื่อมต่อกับเครื่องชั่งน้ำหนักเพื่อรับน้ำหนักจากเครื่องชั่งแล้วนำไปใช้ในการซื้อขายเหมาะสำหรับงานชั่งน้ำหนัก ประเภทต่างๆ เช่น
• ชั่งน้ำหนักรถบรรทุก
• ชั่งน้ำหนักซื้อขายทั่วไป
• ชั่งน้ำหนักพืชผลทางการเกษตร
• ซื้อขายของเก่า
• ชั่งผลิตสินค้า
• โรงงานแป้งมัน
• โรงโม่หิน
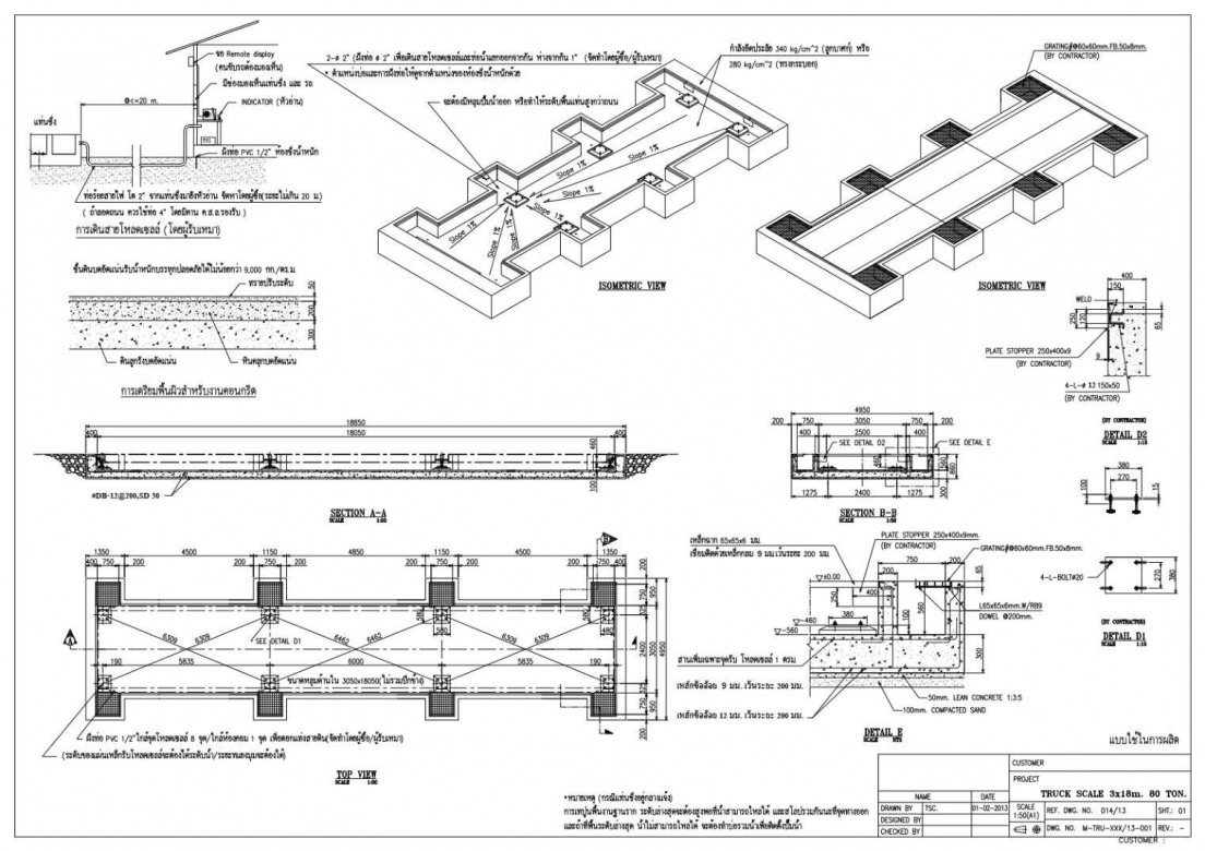
จำหน่ายและติดตั้งเครื่องชั่งรถบรรทุก (Truck Scale)
มีทั้งเครื่องชั่งแบบแท่นลอยและเครื่องชั่งแบบฝังพื้น เป็นเครื่องชั่งที่ประหยัดพื้นที่เพื่อลดพื้นที่ของเครื่องชั่ง
✅ เหมาะสำหรับรถพ่วงและรถเทเลอร์ แบบอิเล็กทรอนิกส์
✅ โครงสร้างแท่นชั่งเป็นโครงเหล็ก ใช้ Load Cell หลายตัว
✅ พื้นแท่นชั่ง เหล็กล้วนหรือคอนกรีต
✅ รถวิ่งเข้าได้ทั้งด้านหน้าและด้านหลัง
เครื่องชั่งรถบรรทุกแบบลอย
แท่นคอนกรีตเสริมเหล็ก 80 ตัน ขนาด 3x18 เมตร
✅ เรามีขนาดแท่นชั่งตั้งแต่ 3×7, 3×8 , 3×9, 3×18 เมตร
✅ มีทั้งแบบแท่นลอยและแบบฝังเรียบเสมอพื้น
✅ พิกัดน้ำหนักมีตั้งแต่ 50 ตัน , 60 ตัน , 80 ตัน ,100 ตัน
✅ มีบริการตรวจรับรอง สำนักชั่งตวงวัด จากกระทรวงพาณิชย์
✅ รับประกันนานกว่าถึง 2 ปี
Upgrade Smart เครื่องชั่งรถบรรทุก การชั่งน้ำหนักที่ไม่ต้องยุ่งยากอีกต่อไป
• อุปกรณ์ IOT สําหรับเครื่องชั่ง
• Rs232 Bluetooth Adapter
• สําหรับแปลงสัญญาณ Rs232 ที่ออกจากเครื่องชั่ง
• เป็นสัญญาณ Bluetooth เพื่อเชื่อมต่ออุปกรณ์ที่รับสัญญาณ
• ผ่าน bluetooth ได้เช่น มือถือ หรือ tablet
• มีระยะการส่งสัญญาณ สูงสุด 100 เมตร
บริษัท โทนัน อาเชีย ออโต้เทค จำกัด เราเชี่ยวชาญด้านเครื่องชั่งอุตสาหกรรม ทุกประเภท ตั้งแต่ชั่งสินค้า, ชั่งสารเคมีวัตถุดิบ, ชั่งผลผลิตการเกษตร, ชั่งสัตว์ไปจนถึงชั่งรถบรรทุกขนาดใหญ่ เรามีประสบการณ์ยาวนานเข้าสู่ปีที่20 เรามุ่งมั่นที่จะยกระดับงานชั่งในกลุ่มโรงงาน คลังสินค้า การเกษตรปศุสัตว์ให้มีความเที่ยงตรง แม่นยำมีประสิทธิภาพสูงขึ้น เพื่อเพิ่มผลผลิต ลดข้อผิดพลาดและเพิ่มขีดความสามารถในการแข่งขันมากยิ่งขึ้น
เราพร้อมทุ่มเทดูแลให้บริการลูกค้าทั้งก่อนและหลังการขายอย่างมืออาชีพโดยทีมงานที่มีความเชี่ยวชาญและมีประสบการณ์
"เพราะลูกค้าคือคนสำคัญที่สุด"


บริษัท โทนัน อาเชีย ออโต้เทค จำกัด
295/7-8 ถนน.ช่างอากาศอุทิศ เเขวงดอนเมือง เขตดอนเมือง กรุงเทพฯ 10210
Tax ID: 010554616802
ฝ่ายขาย: 0-2565-9370 (5 Autoline)
E-mail : marketing@tonanasia.com

สามารถ Downloads แคตตาล๊อคเพิ่มเติมได้ที่ ClickProfile Company-เครื่องชั่งอุตสาหกรรม และ Clickดูข้อมูลเพิ่มเติม
Click รับชมเกร็ดความรู้เกี่ยวกับเครื่องชั่งรถบรรทุก
Line ID: @tonanasia
เข้าชมเว็ปไซต์
เฟสบุ๊คแฟนเพจ
ใบเสนอราคา
จำหน่ายและติดตั้งเครื่องชั่งรถบรรทุก (Truck Scale)
มีทั้งเครื่องชั่งแบบแท่นลอยและเครื่องชั่งแบบฝังพื้น
จำหน่ายเครื่องชั่งอุตสาหกรรม (Industrial Scale)
จำหน่ายเครื่องชั่งในห้องปฏิบัติการ, ห้องแลป (Laboratory Scale)

จำหน่ายเครื่องชั่งในโรงพยาบาล,คลินิก (Hospital,Clinic Scale)
จำหน่ายและติดตั้งเครื่องชั่งการเกษตร (Agricultural Scale))
จำหน่ายและติดตั้งเครื่องชั่งกรงสัตว์ (Animal Scale)
การบริการเครื่องชั่ง


Upgrade Smart เครื่องชั่งรถบรรทุก
ให้เราช่วยยกระดับเครื่องชั่งของท่านให้มีประสิทธิภาพมากขึ้น สร้างรายได้ให้มากขึ้นได้ ด้วยทีมงานที่มีความเชี่ยวชาญและมีประสบการณ์


บริการจำหน่าย เปลี่ยน ซ่อมโหลดเซลล์ Load Cell โดยทีมงานมืออาชีพ
เรายินดีให้บริการให้ข้อมูลเรื่องรายละเอียดโหลดเซลล์ Load Cell การเลือกโหลดเซลล์เพื่อติดตั้งหรือซ่อมโหลดเซลล์ Load Cell ต้องการเปลี่ยนและติดตั้งโหลดเซลล์ Load Cell ชั่งน้ำหนักทุกยี่ห้อทุกชนิดทุกแบบ ลูกค้าสามารถเทียบ Spec Load Cell ได้ค่ะ
เครื่องตรวจจับโลหะ แบบสายพาน Metal Detector Conveyor

เครื่องตรวจสอบน้ำหนักบนสายพาน Automatic Checkweigher
เหมาะกับอุตสาหกรรม อาหาร เครื่องดื่ม ยา และเครื่องสำอางค์เป็นต้น

บริการตรวจรับรองเครื่องชั่งรถบรรทุก โดยสำนักงานกลางชั่ง ตวง วัด กระทรวงพาณิชย์ ตรวจวิเคราะห์และปรับตั้งค่าให้เครื่องชั่งมีความแม่นยำ เที่ยงตรงได้มาตรฐาน และเป็นการดูแลรักษาตามระยะเวลา ช่วยให้อายุการใช้งานเครื่องชั่งยาวนานขึ้น ประหยัดงบประมาณบำรุงรักษาได้มากขึ้น
เรามีทีมช่างพร้อมบริการ เช่น
✅ งานสอบเทียบ Calibration เครื่องชั่ง
✅ งานตรวจรับรองเครื่องชั่ง
✅ งานซ่อมเครื่องชั่ง
✅ งานย้ายจุดเครื่องชั่ง
นึกถึงเครื่องชั่ง นึกถึง Tonan Asia Autotech
Calibration Service บริการสอบเทียบ บริการเสริมแจ้งปัญหาการใช้งาน พร้อมทีมงานที่มีประสบการณ์ ในการแก้ไขปัญหาด้านเทคนิค ต่างๆ ให้เราเป็นผู้ช่วยดูแลเครื่องชั่งรถบรรทุกของคุณ Preventive Maintenance ครบวงจรในที่เดียว 👍

ครอบคลุมพื้นที่
77 จังหวัด ได้แก่ กระบี่, กรุงเทพมหานคร, กาญจนบุรี, กาฬสินธุ์, กำแพงเพชร, ขอนแก่น, จันทบุรี, ฉะเชิงเทรา, ชลบุรี, ชัยนาท, ชัยภูมิ, ชุมพร, ตรัง, ตราด, ตาก, นครนายก, นครปฐม, นครพนม, นครราชสีมา, นครศรีธรรมราช, นครสวรรค์, นนทบุรี, นราธิวาส, น่าน, บึงกาฬ, บุรีรัมย์, ปทุมธานี, ประจวบคีรีขันธ์, ปราจีนบุรี, ปัตตานี, พระนครศรีอยุธยา, พะเยา, พังงา, พัทลุง, พิจิตร, พิษณุโลก, ภูเก็ต, มหาสารคาม, มุกดาหาร, ยะลา, ยโสธร, ระนอง, ระยอง, ราชบุรี, ร้อยเอ็ด, ลพบุรี, ลำปาง, ลำพูน, ศรีสะเกษ, สกลนคร, สงขลา, สตูล, สมุทรปราการ, สมุทรสงคราม, สมุทรสาคร, สระบุรี, สระแก้ว, สิงห์บุรี, สุพรรณบุรี, สุราษฎร์ธานี, สุรินทร์, สุโขทัย, หนองคาย, หนองบัวลำภู, อำนาจเจริญ, อุดรธานี, อุตรดิตถ์, อุทัยธานี, อุบลราชธานี, อ่างทอง, เชียงราย, เชียงใหม่, เพชรบุรี, เพชรบูรณ์, เลย, แพร่, แม่ฮ่องสอน
924 อําเภอ/เขต
5833 ตำบล/แขวง